I nagroda w konkursie WiMBP
konkurs na opracowanie projektu koncepcyjnego architektury wnętrz I piętra oraz parteru budynku biblioteki w Gdańsku
I nagroda w konkursie WiMBP
I nagroda w konkursie WiMBP
konkurs na opracowanie projektu koncepcyjnego architektury wnętrz I piętra oraz parteru budynku biblioteki w Gdańsku
Biuro SILK
Projekt wnętrza budynku biurowego przy ulicy Łąkowej w Gdańsku
Biuro SILK
Biuro SILK
Projekt wnętrza budynku biurowego przy ulicy Łąkowej w Gdańsku
Projekt korytarzy i klatek schodowych
Projekt korytarzy i klatek schodowych
Projekt korytarzy i klatek schodowych
Biuro LPP
Projekt architektoniczno-budowlany budynku biurowego przy ulicy Sadowej w Gdańsku
Biuro LPP
Biuro LPP
Projekt architektoniczno-budowlany budynku biurowego przy ulicy Sadowej w Gdańsku
Jadalnia Pruszcz
Jadalnia Pruszcz
Jadalnia Pruszcz
OCUS – Salon optyczny
Projekt salonu optycznego marki Ocus w Sopocie
OCUS – Salon optyczny
OCUS – Salon optyczny
Projekt salonu optycznego marki Ocus w Sopocie
LPP S.A. – Fashion Lab
Wnętrza pracowni projektowych Fashion Lab
LPP S.A. – Fashion Lab
LPP S.A. – Fashion Lab
Wnętrza pracowni projektowych Fashion Lab
Biura Mohito/House
Budynek biurowy LPP w Krakowie
Biura Mohito/House
Biura Mohito/House
Budynek biurowy LPP w Krakowie
Silva II Gdynia - przestrzeń wspólna
Projekt aranżacji przestrzeni wspólnych w budynkach mieszkalnych
Silva II Gdynia - przestrzeń wspólna
Silva II Gdynia - przestrzeń wspólna
Projekt aranżacji przestrzeni wspólnych w budynkach mieszkalnych
Biura LPP
Budynek biurowy w Centrum Dystrybucji LPP w Pruszczu Gdańskim
Biura LPP
Biura LPP
Budynek biurowy w Centrum Dystrybucji LPP w Pruszczu Gdańskim
Biura BBK
Projekt architektury wnętrz w kompleksie biurowym BCB Business Park
Biura BBK
Biura BBK
Projekt architektury wnętrz w kompleksie biurowym BCB Business Park
Opera Office
Projekt wnętrza w nowoczesnym wielkopowierzchniowym budynku biurowym klasy A
Opera Office
Opera Office
Projekt wnętrza w nowoczesnym wielkopowierzchniowym budynku biurowym klasy A
Pokoje hotelowe
Pokoje hotelowe
Pokoje hotelowe
Silva Gdynia
Projekt aranżacji przestrzeni wspólnych w budynkach mieszkalnych wielorodzinnych
Silva Gdynia
Silva Gdynia
Projekt aranżacji przestrzeni wspólnych w budynkach mieszkalnych wielorodzinnych
Nadmorze - Przestrzeń wspólna
Projekt aranżacji przestrzeni wspólnych w nowobudowanych budynkach mieszkalnych wielorodzinnych
Nadmorze - Przestrzeń wspólna
Nadmorze - Przestrzeń wspólna
Projekt aranżacji przestrzeni wspólnych w nowobudowanych budynkach mieszkalnych wielorodzinnych
Mieszkanie pokazowe
Projekt wnętrza mieszkania pokazowego w budynku mieszkalnym wielorodzinnym
Mieszkanie pokazowe
Mieszkanie pokazowe
Projekt wnętrza mieszkania pokazowego w budynku mieszkalnym wielorodzinnym
Siedziba LPP
Modernizacja i rozbudowa budynku biurowego przy ul. Łąkowej
Siedziba LPP
Siedziba LPP
Modernizacja i rozbudowa budynku biurowego przy ul. Łąkowej
Kawiarnia „Lili Marlen”
Projekt wykonawczy kawiarni muzycznej
PROJEKT
Studio 1:1
KATEGORIA
Architektura
Wzornictwo
ZAKRES
Projekt koncepcyjny
Projekt wykonawczy
Nadzór autorski nad realizacją
Sopot
1997
Kawiarnia „Lili Marlen”
Kawiarnia „Lili Marlen”
Projekt wykonawczy kawiarni muzycznej
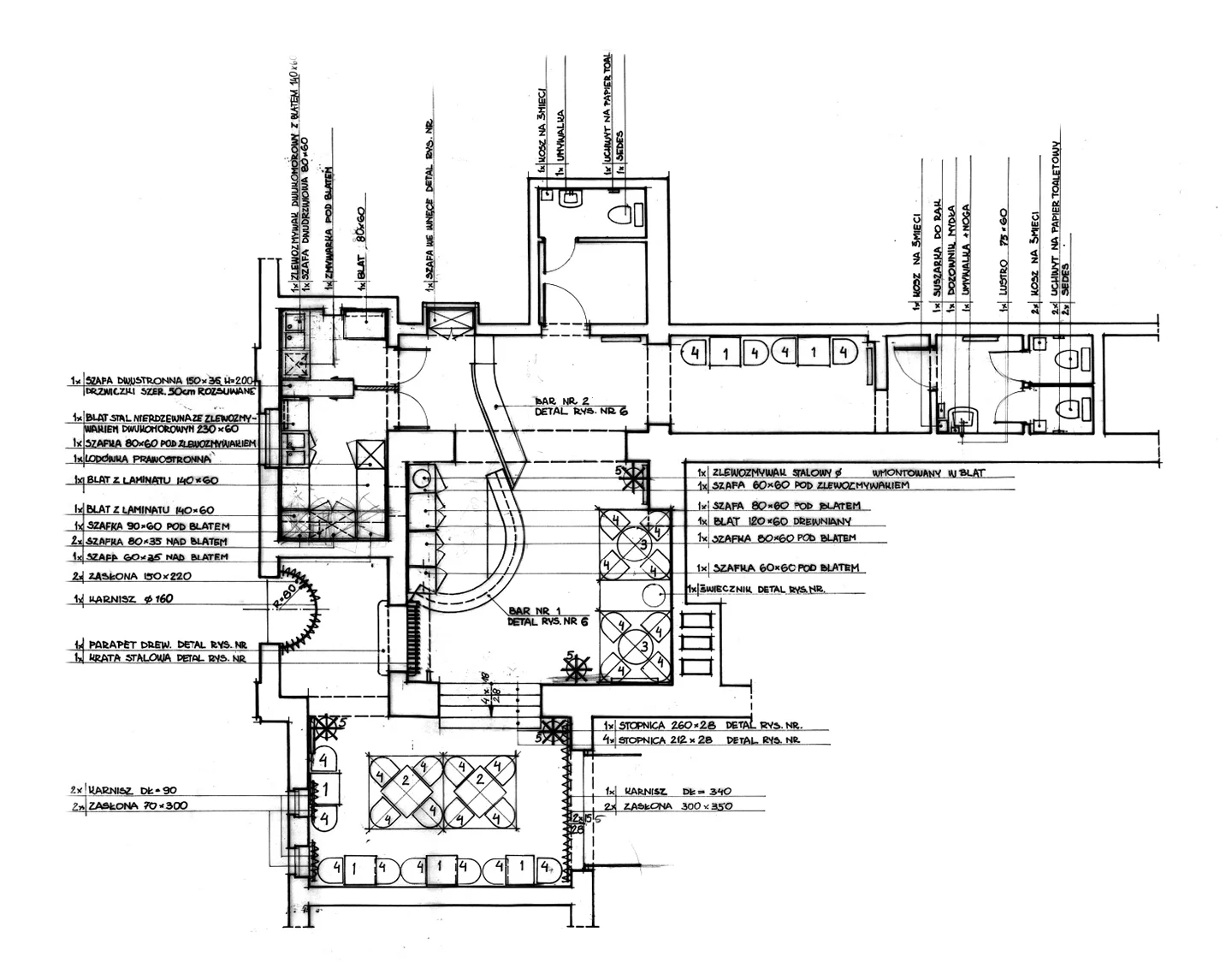
Kawiarnia „Rotunda”
Projekt kawiarni wraz meblami jednostkowymi
Kawiarnia „Rotunda”
Kawiarnia „Rotunda”
Projekt kawiarni wraz meblami jednostkowymi

Twoja wizja. Nasze doświadczenie. Wspólne rozwiązanie.


Skontaktuj się ➔
An unhandled error has occurred. Reload 🗙